Arganzuela - El Águila

Competition - Social Housing Development with 24 Homes

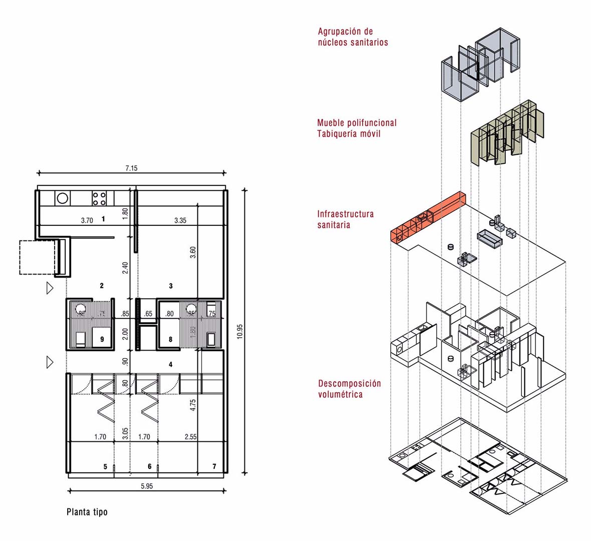
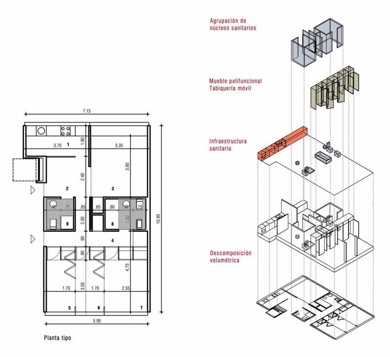
The organisation of this housing complex is based on a functional order where the aim is to obtain the greatest flexibility possible.

The ground floor is slightly raised above street level, benefiting from the existing slope in the terrain, so as to allow vehicle access to the basement and to

Illuminate and ventilate the storage rooms. The top floor has a terrace conceived as a continuation of the flat, which gives the one bedroom units an indoor outdoor connection which increases the perception of space. The sanitary cores have been reduced to a minimum and their central disposition on the floors and their vertical coincidence means not only a saving during construction but also a physical division between the different zones of the programme.

Arganzuela, Madrid

2,200 

8 storeys 

2006


Contact Info
Paseo de la Castellana 151
28046 Madrid, Spain

email: info@rwa.es
phone: +34 915 718 330

                 

© Copyright 2020 RWA- All Rights Reserved

instagram

facebook