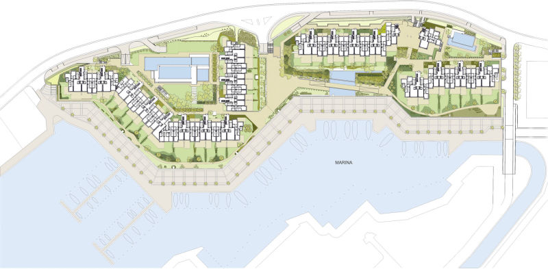
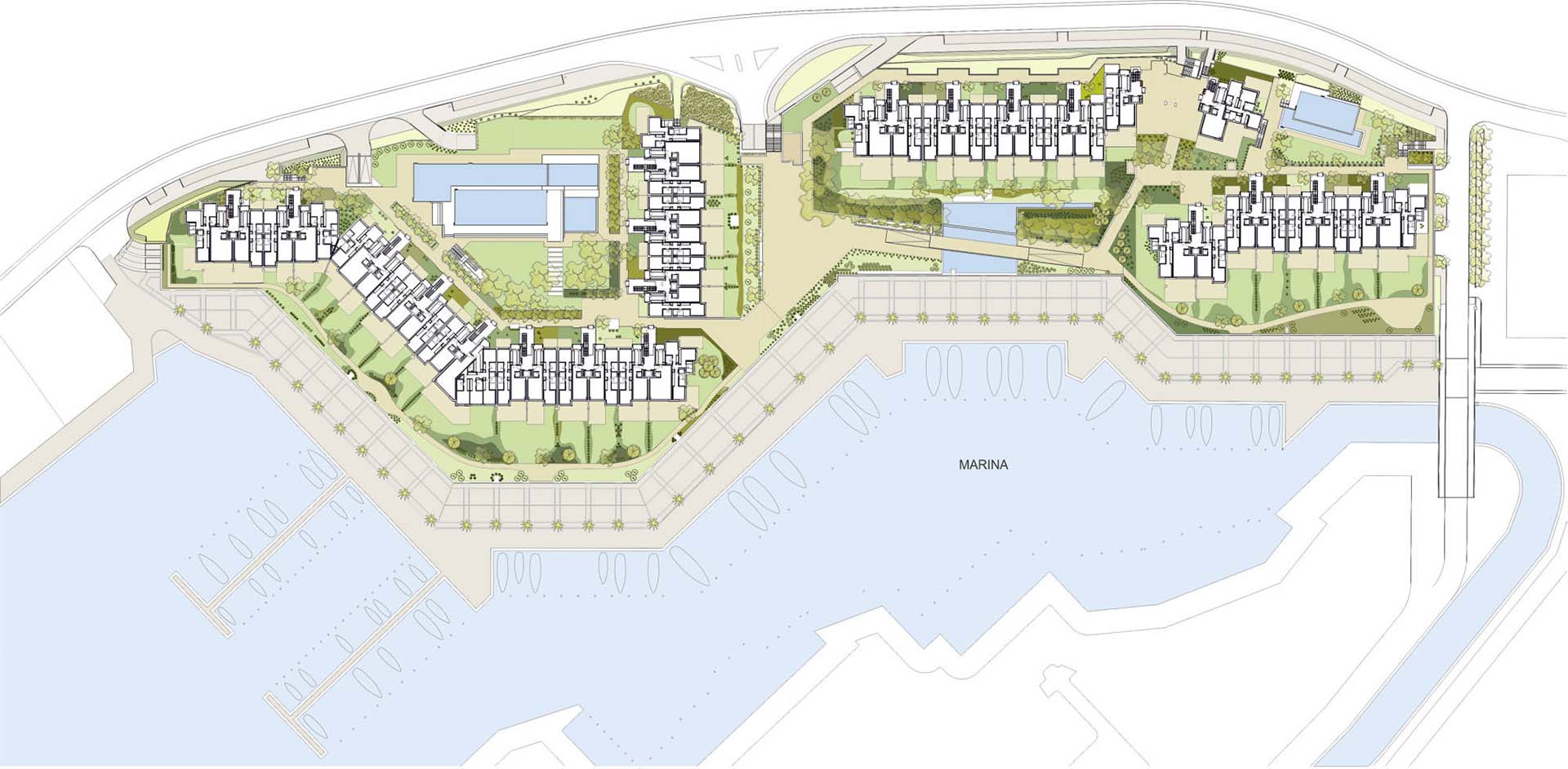
Gardens of the Ribera del Marlin Resort

Landscaping Project

The outdoor areas of the residential resort comply with three fundamental requirements. First of all, they serve as the unifying element in a complex which, due to its extended area on the ground plan, runs the risk of lacking common identity, of breaking up into various isolated actions. Secondly, they serve as a filter between the shopping area of the Maritime Promenade, the interior vehicle access plan and the housing; and thirdly as protection against climatic conditions in the zone.

To this end, three characteristics were alternated among the different selected plant species: their scent, colour and density. The variation in colour and scent from one area to another establishes sensory hierarchies that help to encourage people to move towards the areas of circulation, freeing those areas that, on an access level, need more privacy.

Variation of plant density goes from the opacity of a four-metre high green wall to the transparency of climbing plants on steel wires; includes tall trees, spreading trees, deciduous and evergreen trees, bushes or ground covering creepers. All of them combine with folds and inclines in the terrain to achieve, in a natural way, protection for the housing from the district's strong winds and heavy rain, from excessive sunshine and from curious eyes.

Ribera del Marlin, Puerto de Sotogrande, Cádiz 

Green Area: 7,500 m²

Water Area: 380 m²

2008


Contact Info
Paseo de la Castellana 151
28046 Madrid, Spain

email: info@rwa.es
phone: +34 915 718 330

                 

© Copyright 2020 RWA- All Rights Reserved

instagram

facebook