Residential Development

Cantalejo, Madrid

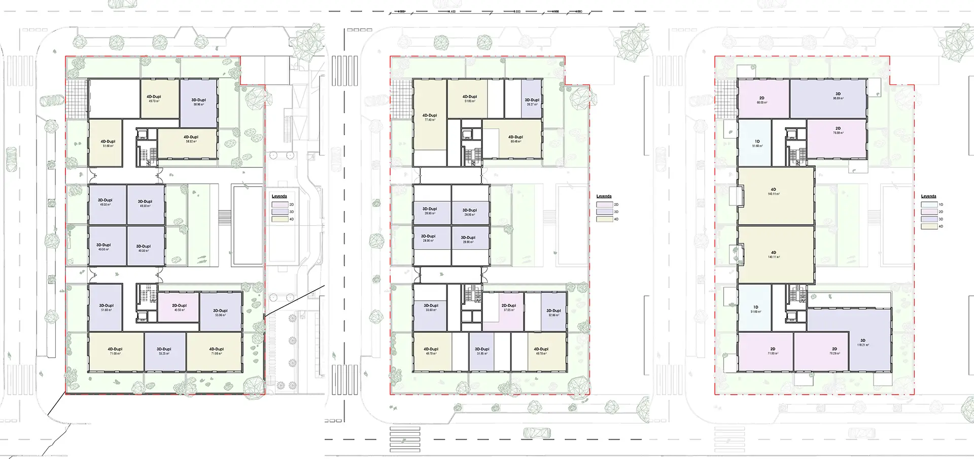
Architectural proposal for a residential building with 1, 2, 3 and 4 bedroom apartments in the neighborhood of Cantalejo in perimeter block typology.

The proposal seeks to generate a permeability towards the interior spaces in such a way that they acquire better habitability conditions.

The complex is organised in a U-shaped block that reduces its floor plan on the higher levels in order to ensure sunlight in the open spaces of the plot.

The facades seek to generate dynamic volumes, simple and complex at the same time.

46 dwellings

4.997 m²

5 floors

2024


Contact Info
Paseo de la Castellana 151
28046 Madrid, Spain

email: info@rwa.es
phone: +34 915 718 330

                 

© Copyright 2020 RWA- All Rights Reserved

instagram

facebook