Alcalá de Henares

Concurso - Rehabilitación del Cuartel de Lepanto para destinarlo a Residencia de Estudiantes

La intervención en el Cuartel de Lepanto, edificio de tipología militar de mediados del siglo XIX, se integra dentro de un conjunto de rehabilitaciones que supondrá la remodelación del tejido urbano de la ciudad de Alcalá de Henares. Se pretende revitalizar el casco antiguo mediante la construcción de una biblioteca central, una residencia, instalaciones docentes y de ocio, un auditorio, zona de museos y un aparcamiento, así como la instalación de algunos servicios –tiendas, restauración, locales de esparcimiento– necesarios para el mantenimiento de todo el complejo.

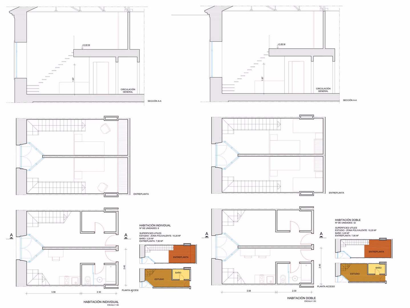
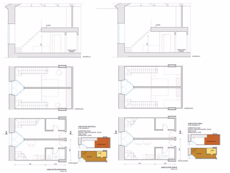
Las reformas a realizar tendrán como objetivos la recuperación del estado original de la fachada y sus elementos protegidos, que requieren reparaciones y saneado generalizados y la sustitución de los actuales faldones de teja cerámica por chapas de zinc, a fin de mantener la apariencia estética de este edificio que forma parte de la imagen de la ciudad Patrimonio de la Humanidad. Se reorganizará la distribución espacial de las plantas y se corregirán las actuales deficiencias técnicas y funcionales. La intervención se completará con la demolición de todos los elementos no estructurales y la multiplicación de la superficie útil generando entreplantas entre los forjados actuales, para conformar habitaciones de doble altura. La actuación prevé generar habitaciones para uso individual y doble, a arrendar a estudiantes universitarios, con espacios comunes destinados a usos varios y servicios.

Calle San Pedro y San Pablo, Alcalá de Henares, Madrid

293 habitaciones

10.545 

4 plantas

2007


Información de Contacto
Paseo de la Castellana 151
28046 Madrid, España

email: info@rwa.es
teléfono: +34 915 718 330

                 

© Copyright 2025 RWA- Todos los derechos reservados

instagram

facebook