Edificio de Viviendas y aparcamientos

Cantalejo, Madrid

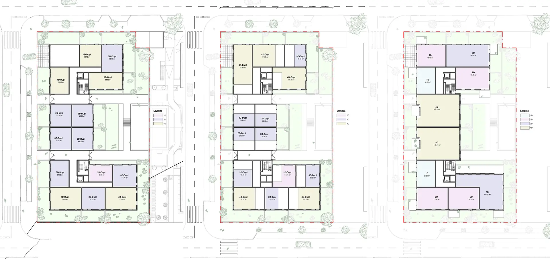
Propuesta arquitectónica para un edificio de uso residencial, con viviendas de 1, 2, 3 y 4 dormitorios en el barrio de Cantalejo en tipología de bloque abierto.

La propuesta busca generar una permeabilidad hacia los espacios interiores de tal forma que éstos adquieran mejores condiciones de habitabilidad.

El conjunto se organiza en en cuerpo en U que va reduciendo su planta a medida que se aumentan los niveles con el objetivo de garantizar el asoleo en los espacios libres de la parcela.

Las fachadas buscan generar unos volúmenes dinámicos, simples y comlejos al mismo tiempo.

46 viviendas

4.997 m²

5 plantas

2024


Información de Contacto
Paseo de la Castellana 151
28046 Madrid, España

email: info@rwa.es
teléfono: +34 915 718 330

                 

© Copyright 2025 RWA- Todos los derechos reservados

instagram

facebook