Josep Pla 2

Reforma Integral e Implementación de Oficina

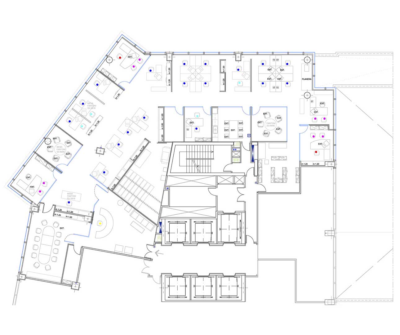
Implantación de oficina en Barcelona para el grupo Hines en Diagonal Mar. La excelente ubicación del edificio y la elevada altura de la planta que albergaba las oficinas le proporcionaban unas excelentes vistas que se convirtieron en la base del diseño.

Se optó por concentrar los elementos opacos tales como archivos, instalaciones o aseos junto al núcleo central de ascensores, los elementos individuales acristalados en el perímetro cerrados por esbeltas mamparas de vidrio y las distintas islas de puestos de trabajo en un lugar intermedio; consiguiéndose una fluidez visual continua entre el interior y el paisaje exterior.

Calle Josep Plá 2, Barcelona

450

2004


Información de Contacto
Paseo de la Castellana 151
28046 Madrid, España

email: info@rwa.es
teléfono: +34 915 718 330

                 

© Copyright 2025 RWA- Todos los derechos reservados

instagram

facebook